5
5
3935
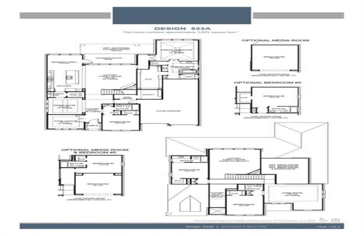
Property Description: Two-story entry with 20-foot ceiling. Home office with French doors set at entry. Formal dining room. Kitchen features an island with built-in seating space, 6-burner range top, walk-in pantry and Butler's pantry. Morning area features a wall of windows. Two-story family room with a corner fireplace and a sliding glass door. Secluded primary suite with a wall of windows. Primary bath with double door entry features dual vanities, a freestanding tub, separate glass-enclosed shower and walk-in closet. Secondary bedrooms, game room, media room and storage space complete the second floor. Extended covered backyard patio. Hardwood floors throughout main living areas. Three-car garage. Mud room.