5
4
3707
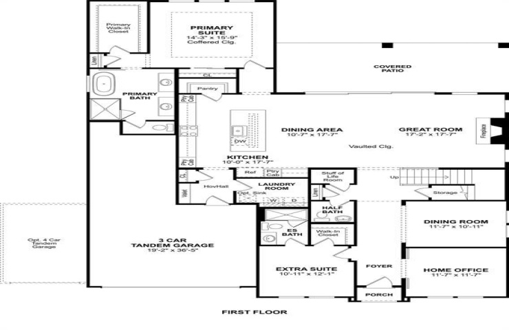
Property Description: Located in Northwest ISD! This stunning 2-story home provides a comfortable open floorplan with an Extra Suite, ideal for extended stay guests. A private home office followed by an intimate dining room is great for entertaining. The kitchen features a spacious island and overlooks the well-lit great room. A cozy dining area allows access to the covered patio, great for outdoor living. In from the garage, a HovHall and laundry room keep your home tidy. The primary suite with private bath and spacious walk-in closet. A versatile loft, 3 additional bedrooms, and an entertaining media room allow for comfort for all. Located in Wellington, the neighborhood will offer amazing amenities including a resort style pool, multi-use amenity center, playground, and walking trails.