5
3
3105
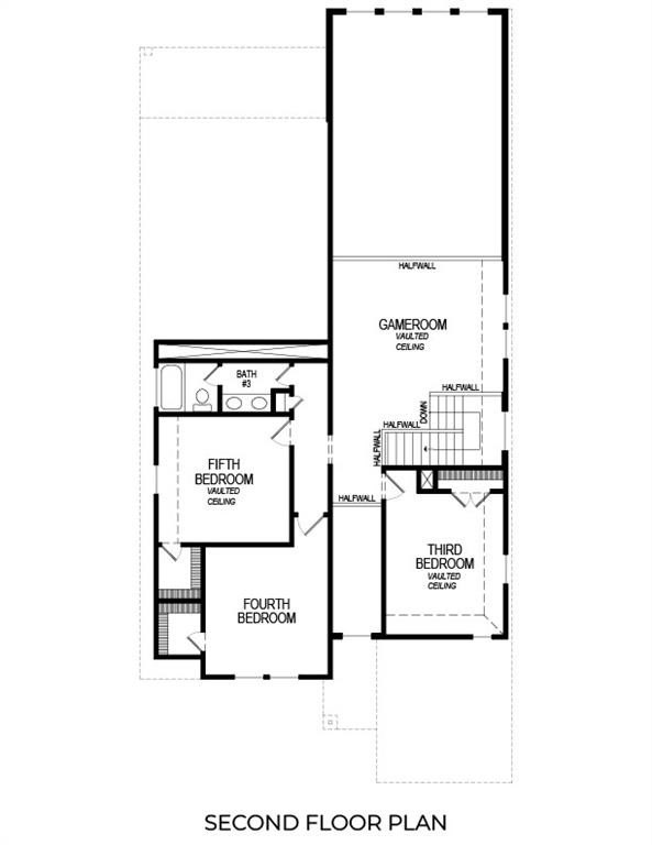
Property Description: MLS# 21097030 - Built by First Texas Homes - Jan 2026 completion! ~ Discover extraordinary value in this impressive two-story home offering 3,105 square feet of thoughtfully designed living space. With five spacious bedrooms, three full baths, and a private study with elegant French doors, this home perfectly blends comfort and functionality. The expansive master suite provides a peaceful retreat, featuring plenty of space to unwind and recharge. The heart of the home is the beautifully appointed kitchen, showcasing 42-inch painted cabinets, sleek quartz countertops, and stunning luxury vinyl plank flooring that flows throughout the main living areas. Every detail has been crafted with style and quality in mind. With its generous layout, modern finishes, and unbeatable price, this five-bedroom home is truly an exceptional value—offering the space, comfort, and design you’ve been searching for.