3
2
2388
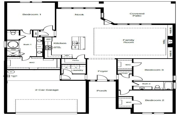
Property Description: Beautiful home with granite and stainless appliances. Great location with easy access to Highway 349, Fairgrounds Road, and Loop 250. Subdivision offers a community park, splash pad, and walking trail. Photos and videos are for illustration purposes only.