4
4
4280
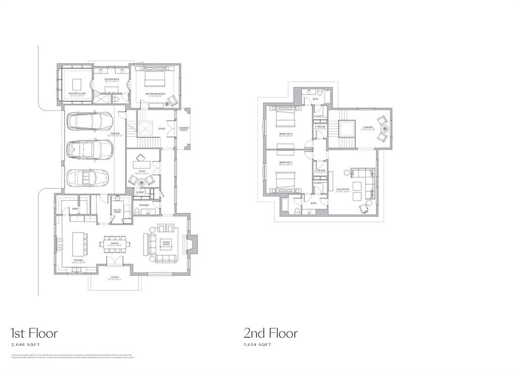
Property Description: Incredible opportunity for a new construction home designed and built by Rosewood Custom Builders as a part of the Signature Collection of Preston Hollow Village! To be completed in Fall of 2026, this contemporary home features 4 spacious bedrooms, 4.1 bathrooms and spans just under 4,300SF. Situated on a premium lot within the gated Preston Hollow Village community, experience a lock & leave oasis with gorgeous hardwood flooring throughout, Wolf & SubZero appliances, custom cabinetry and an expressive three-car garage. The Preston Hollow Village model home is located at 7702 Chatsworth Pl, open Thursday - Sunday from 2-4PM. For a tour of the build site, please visit the model home home during business hours or call Ani Nosnik or Sanders Avrea.