4
3
3115
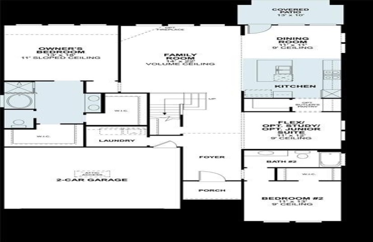
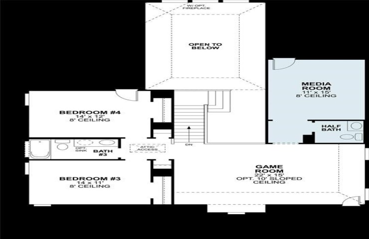
Property Description: Built by M-I Homes. Discover this stunning new construction home at 2620 Tamarack Lane located in the peaceful community of Vintage Village and within the top-rated Argyle ISD. This thoughtfully designed home offers an open-concept living space, perfect for everyday life and entertaining, plus dozens of upgrades and impressive features. Key Features: • 4 spacious bedrooms with owner's bedroom conveniently located on the main floor • 3.5 bathrooms with quality fixtures and finishes • Open-concept floorplan connecting kitchen, dining, and living areas • New construction with contemporary design elements and attention to detail Neighborhood & Location Benefits: • Located in a desirable neighborhood in the top-rated Argyle ISD with a welcoming community atmosphere • Close proximity to parks and recreational opportunities • Thoughtful neighborhood design that complements daily living and lifestyle needs The home's floorplan maximizes functionality, with well-proportioned rooms and practical storage solutions. The open-concept design ensures seamless flow between spaces, ideal for both daily living and hosting guests. Tall, volume ceilings in the family room, in addition to extra large windows providing ample natural light create an open and inviting ambiance. Upstairs also offers a Game-room and Media Room! Additional bedrooms provide flexible space for family, guests, or a home office. Everyone will have a space to call their own! This new construction home offers a move-in ready opportunity in one of the Argyle and Denton area's most sought-after neighborhoods, combining modern design, functional layout, and a convenient location. Schedule your visit today!