4
2
1773
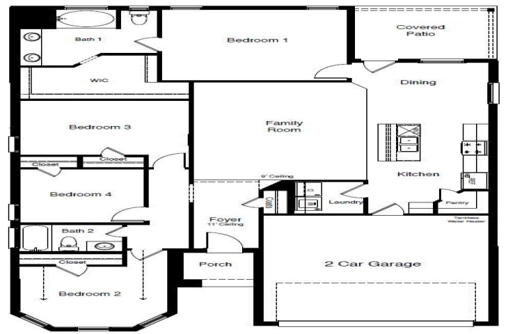
Property Description: Beautiful new construction with granite and stainless appliances. Great location near shopping and restaurants. Photos and videos are for illustration purposes only. Image representative of plan only and may vary as built. Features, colors, and options may vary in each community. Additional charges may apply for certain upgrades. Landscaping and furnishings not included.