4
3
2411
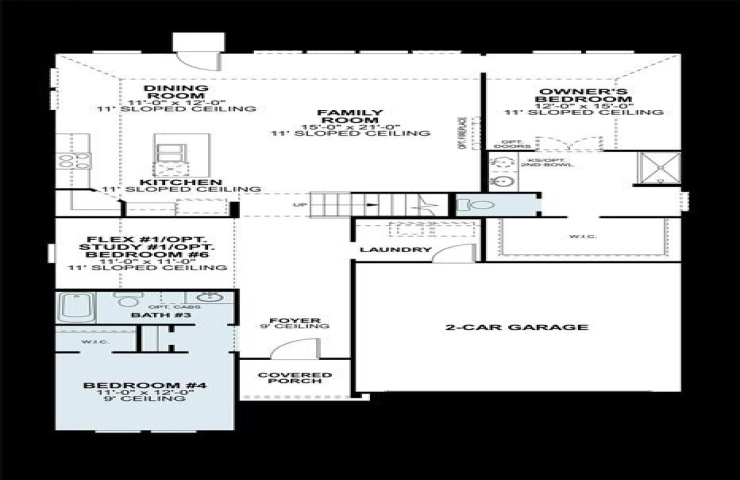
Property Description: Built by M-I Homes! Discover this stunning new construction home at 3404 Coronation Court in Denton, built by M-I Homes. This thoughtfully designed 4-bedroom, 3-bathroom home offers spacious amount of comfortable living space and a first-floor owner's suite for easy accessibility. This home features the following: Open-concept living space creates seamless flow between main living areas 4 spacious bedrooms and a flex room 3 full bathrooms ensure convenience for daily routines 2-car garage Game room The home's thoughtful floorplan maximizes both privacy and gathering spaces, making it ideal for everyday living and entertaining. The open-concept design connects the kitchen, dining, and living areas, creating an inviting atmosphere for family time. Located in a desirable Denton neighborhood, this home offers proximity to beautiful parks perfect for outdoor recreation and family activities. The area's well-established community provides a welcoming environment with tree-lined streets and quality design standards throughout. The new construction ensures everything is move-in ready with contemporary finishes and efficient systems. M-I Homes' reputation for quality craftsmanship is evident throughout this carefully constructed home. This home represents an excellent opportunity to own new construction in one of Denton's sought-after neighborhoods, combining modern living with the charm of an established community setting. Schedule your visit today!