3
2
1786
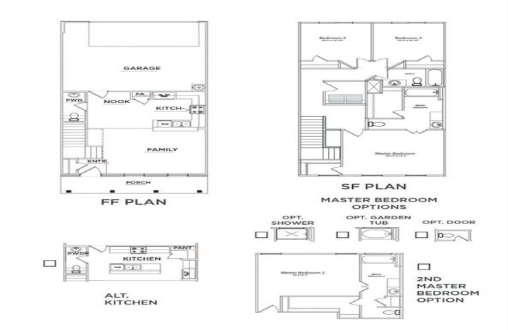
Property Description: MLS# 21101948 - Built by HistoryMaker Homes - Dec 2025 completion! ~ Welcome to the Travis model at Mockingbird Estates, a stunning new construction townhome by HistoryMaker Homes. This spacious 2-story home features 3 bedrooms and 2.5 baths, offering a perfect blend of comfort and modern living. All bedrooms are located upstairs, including a generously sized primary suite with a large walk-in closet. The luxurious primary bath boasts dual sinks and a walk-in shower. Downstairs, enjoy a bright and open living room, ideal for entertaining. Upstairs, a versatile loft area provides additional space for relaxation or work. Don’t miss your chance to own this beautiful, thoughtfully designed home!!