4
3
2473
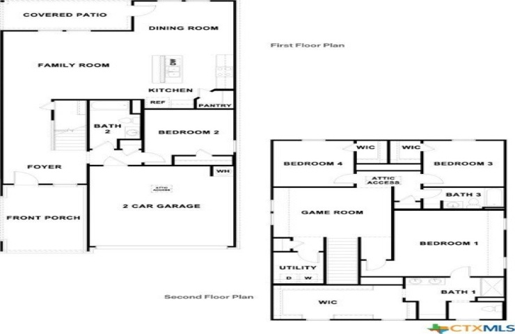
Property Description: MOVE IN READY!. CORNER LOT! Check out the Nicole, one of our new homes available. This two-story home offers 4 bedrooms, 3 bathrooms, a gameroom, and 2 car garage all within 2,473 square feet of comfortable living space. Entering the home, cross the foyer and find a short hallway to the downstairs secondary bedroom and a full bathroom. Passing the stairwell, continue through the foyer to the heart of the home, the living area. The family room, dining area, and kitchen are open, making entertaining and everyday living a shareable experience for family and friends. The kitchen features quartz countertops, a large island with undermount sink, a corner pantry closet, stainless-steel appliances and 36’’ upper cabinets. Moving upstairs, you’ll enter the gameroom, the center of the upstairs space. The oversized primary bedroom is tucked away from the gameroom. Stretch out and relax at the end of your day in this spacious and private ensuite. The primary bathroom features a walk-in shower, marble countertops with dual vanity, separate toilet area with a door, and an enormous walk-in closet. This will be the closet of your dreams, spacious enough to add a dressing island or chaise lounge for a full luxurious experience. The additional upstairs bedrooms and bathroom are located opposite the primary bedroom. The bedrooms feature walk in closets with shelving. Both secondary bathrooms include a shower/tub combination. The utility room rounds out the upstairs space, making laundry chores a breeze. The Nicole includes vinyl flooring throughout the common areas of the home and carpet in the bedrooms. All our new homes at Paramount feature extra storage space in the garage, a covered back patio, full sod, and an irrigation system in the front and back yard. This home comes with our America’s Smart Home base package, which includes Video Front Door Bell, Front Door Deadbolt Lock, Home Hub, Thermostat, and Deako® Smart Switches.