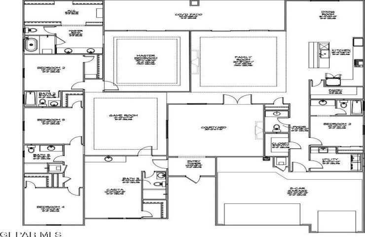
6
5
3840
Property Description: The Marigold: An enormous 6-bedroom, 5.5-bathroom single-story home with 3840 sq ft of thoughtful design and luxury. Located on a private, gated, neighborhood that offers privacy and luxurious life style. This house offers plenty space, the kitchen features granite countertops, pot filler, apron farmhouse sink, and upgraded lighting-flowing directly into the open living and dining spaces. The primary suite offers a full bath and ample closet space, while one secondary junior suite includes its own private bathroom. Listing subject to errors, omissions, and changes without notice. Info provided is deemed reliable but not guaranteed. MLS photos are for marketing purposes only and may not reflect actual colors or upgrades. Please verify selections during design appointment.