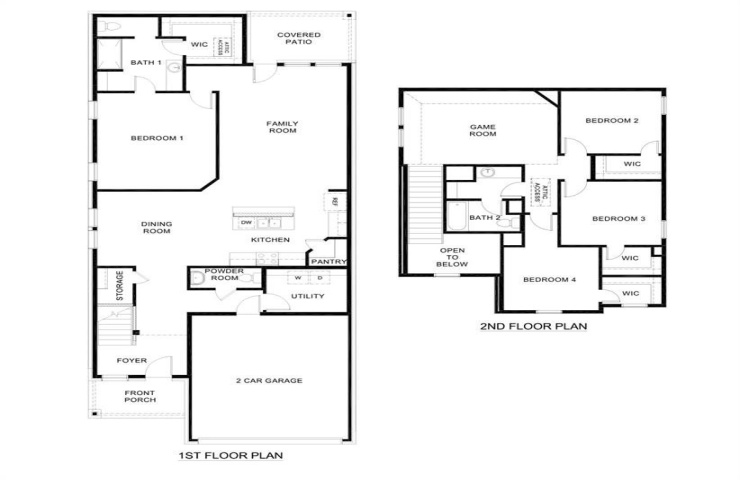
1711 Potomac Lane Blue Ridge, Texas 75424 Listing ID 21104603
4
2
2404
Property Description: New Construction by DR Horton. This beautiful 2 story home offers 4 Bedrooms, 2.5 Bathrooms, 2 Car Garage, and Covered Patio. Energy efficient, and smart home features included.