3
2
2005
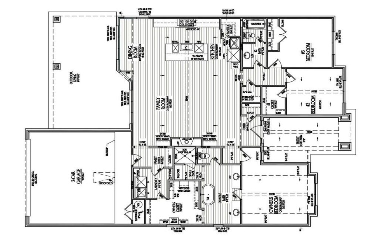
Property Description: Welcome to this beautifully designed by Addison Homes featuring a 3-bedroom, 2-bath home that perfectly blends comfort, style, and functionality. Step inside to an inviting open-concept living area featuring a stunning stone fireplace, creating a warm and welcoming focal point for gatherings or cozy nights in. The spacious kitchen offers modern finishes, ample counter space, and a seamless flow into the dining and living areas-ideal for entertaining. The isolated primary suite provides a private retreat, complete with a spa-inspired ensuite bath and a walk-in closet with direct access to the laundry room-a thoughtful touch that makes everyday living effortless. Outside, enjoy the large covered back patio, perfect for relaxing evenings or hosting weekend get-togethers. With its smart layout, beautiful finishes, and convenient features throughout, this home offers both elegance and everyday practicality. Come see why this one is special! Addison Homes