4
3
2381
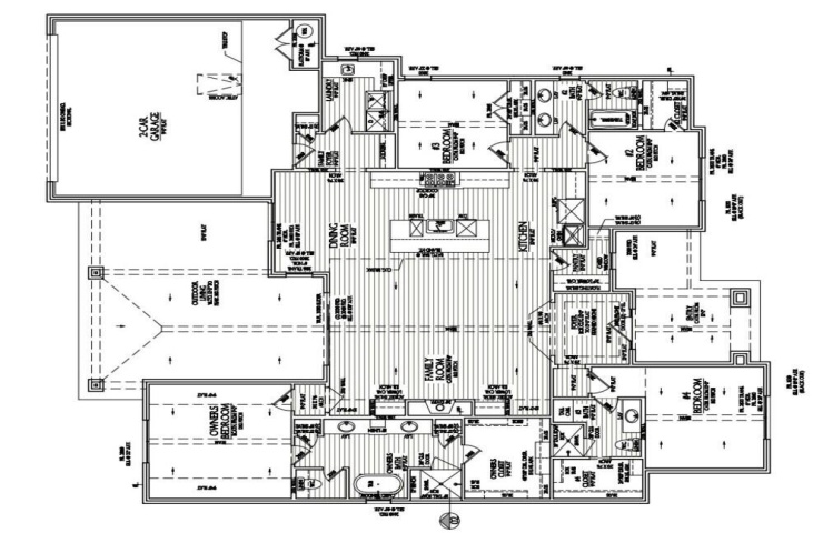
Property Description: Discover this stunning 4-bedroom, 3-bath home featuring an inviting open-concept layout and a beautiful stone fireplace that anchors the spacious living area built by Addison Homes. The seamless flow between the living, dining, and kitchen spaces creates an ideal setting for both everyday living and entertaining. The kitchen offers ample counter space, stylish cabinetry, double oven, and a large island perfect for gatherings. The primary suite provides a private retreat with a luxurious ensuite bath and walk-in closet, while three additional bedrooms and two baths offer comfort and flexibility for family or guests. With elegant finishes, natural light, and thoughtful design throughout, this home combines warmth, functionality, and modern style-perfect for those who love open spaces and timeless character. Addison homes.