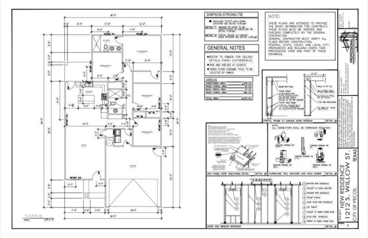
4
2
1478
Property Description: New Build For Sale! Discover your dream home with this stunning new construction featuring 4 spacious bedrooms 2 bathrooms. Highlights include: *Master Bathroom: Enjoy a beautifully designed master bath with his and hers vanities, perfect for both comfort and convenience.*Kitchen: Modern granite countertops throughout the kitchen and bathrooms, providing elegance and durability.* Spacious Living: High ceilings create an open and airy atmosphere, ideal for entertaining.