5
3
2622
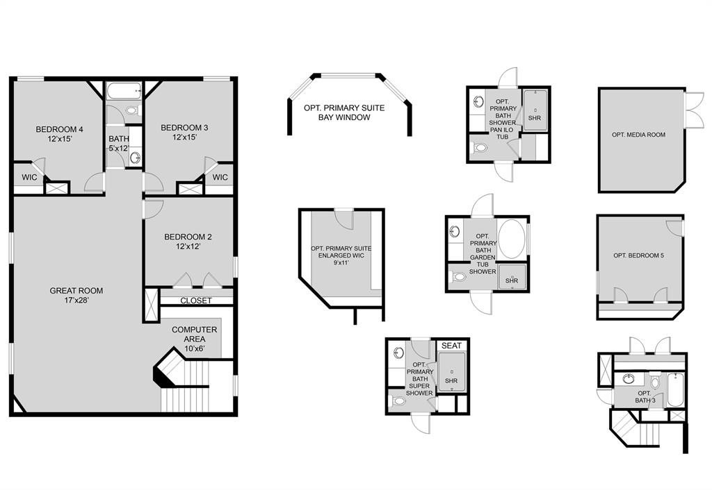
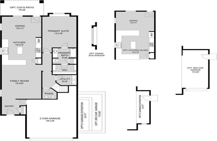
Property Description: Welcome to The Retreat at Fossil Creek, one of Legend's newest communities in Fort Worth, TX! The Redbud floor plan is a spacious two-story home with 5 bedrooms, 3.5 baths, game room, and 2-car garage. This home has it all - including privacy blinds and vinyl plank flooring throughout the common areas! The gourmet kitchen is sure to please with 42-inch cabinets, granite countertops, and stainless-steel appliances! You'll love the optional kitchen layout with extra counterspace and a center island! Retreat to the first-floor Owner's Suite featuring double sinks with granite countertops, a separate tub and shower, and a walk-in closet! Enjoy the great outdoors with a covered patio! Don’t miss your opportunity to call The Retreat at Fossil Creek home, schedule a visit today!