4
4
2770
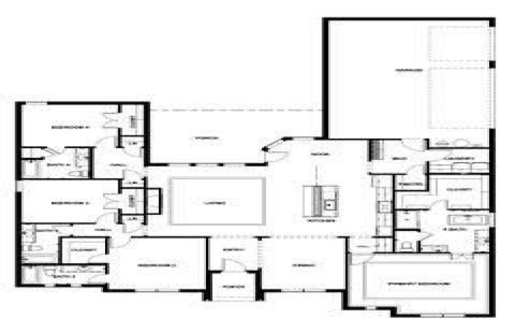
Property Description: Sitting on a full acre in Park Hill Estates, this 4 bedroom, 4 bath home gives you all the space you've been looking for - inside and out. The open layout is bright and inviting, with a kitchen that's built to impress: massive island, gas cooktop, and storage everywhere you look. The primary suite is tucked away for privacy and feels like a retreat with dual vanities, separate tub and shower, and a closet big enough to get lost in. One of the secondary bedrooms is a true en-suite with its own bath - perfect for guests or older kids. And that acre? It's a blank canvas. Build your dream shop, drop in a pool, plant a garden, or just enjoy the wide-open space. Big covered patio and 3-car garage seal the deal. Ask about a $0 down USDA loan! *Construction began the week of Sept 29th and will be completed in approximately 130 days*