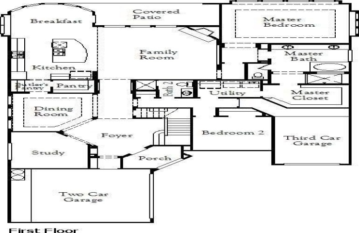
Property Description: MLS# 21113755 - Built by Coventry Homes - Mar 26 2026 completion! ~ Step into timeless elegance with this stunning two-story, 5-bedroom, 4.5-bath manor-style home that perfectly balances luxury and livability. A grand curved staircase welcomes you into open living spaces designed for modern life. Enjoy coffee on the covered patio, work from the private study, and entertain in the gourmet kitchen featuring a gas cooktop, built-in appliances, and a stylish butler’s pantry with wine shelving. The primary suite offers a spa-inspired retreat, while the upstairs media room and guest suite provide comfort for everyone. Thoughtfully designed and beautifully finished—this home makes everyday living feel extraordinary. Schedule your tour today!