3
2
1701
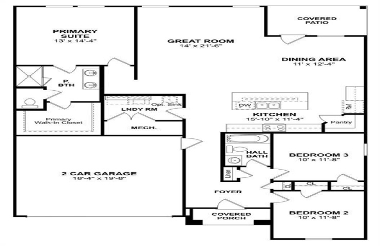
Property Description: NO MUD, NO PID. Single story home in Mesquite ISD. This home showcases a stunning open concept floorplan - with the kitchen hosting light stain shaker cabinets, quartz countertops, and stainless steel appliances. The primary suite and bathroom are tucked away at the back of the home for privacy. Community amenities include a neighborhood playground and pond. Schedule your visit to Caldwell Lakes today.