3
2
2302
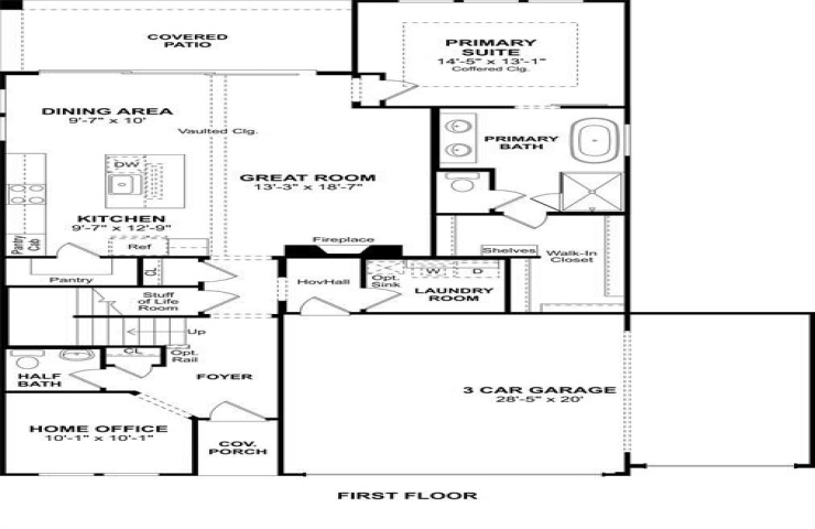
Property Description: This beautiful two-story home showcases an open concept with a well-lit dining area and spacious great room featuring a vaulted ceiling and access to a covered patio. The welcoming kitchen that hosts white shaker cabinets with brushed nickel hardware, quartz countertops and stainless steel appliances. The kitchen island will surely become a focal point with beautiful pendant lighting! A primary bedroom is tucked away at the back of the home offering plenty of privacy. The elegant private bath with dual sinks, freestanding tub and generous walk-in closet. A versatile loft is ideal for a home movie theater while 2 spacious bedrooms share a hall bath on the second floor. Residents will enjoy future on-site amenities including walking trails, a pool, and a community park. Schedule a tour today