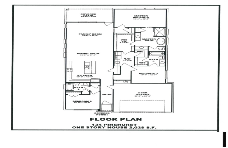
3
2
2028
Property Description: New home on choice golf course lot in gated guarded golf course community. Home features open concept living area, large kitchen with island, LVP flooring throughout, Quartz counters in kitchen and baths and numerous other upgrades throughout. Great golf course views. Construction to commence as soon as permitting process is completed.