4
3
2769
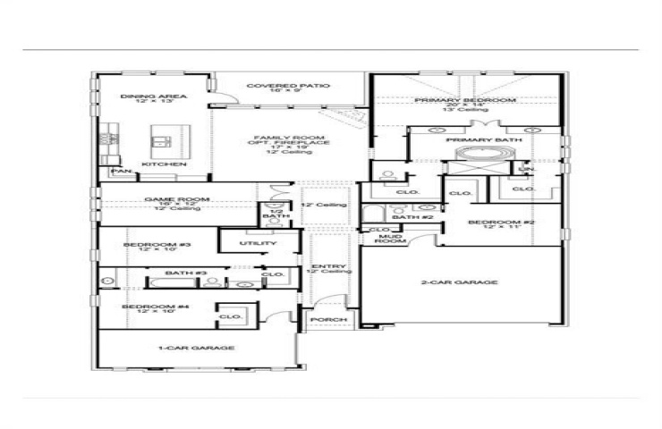
Property Description: The front porch opens into an extended entryway with a coffered ceiling. Hardwood floors throughout living areas. Two secondary bedrooms are off the main hallway and feature a Hollywood bathroom and walk-in closets. The utility room is conveniently located near the secondary bedrooms. A guest suite is across the hall and boasts a private bathroom and walk-in closet. French doors open into game room. The open family room boasts a wall of windows, a wood mantel fireplace and an extended ceiling. The kitchen features an island with built-in seating, a 5-burner gas cooktop, a double wall oven and a walk-in pantry. The corner dining area is embraced by windows and allows access to the covered backyard patio. The secluded primary bedroom features extended ceilings and three large windows. The primary bathroom hosts dual vanities, freestanding tub, glass enclosed shower, a linen closet, and two walk-in closets. The mud room is located off of the 3-car split garage.