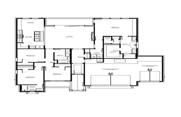
4
3
2123
Property Description: Discover the Kickapoo Creek Floor Plan by Flintrock Builders—an exceptional home designed with families in mind. This beautiful 4-bedroom, 3-bathroom residence spans 2,123 sq. ft., offering a perfect balance of comfort and style. The open-concept layout seamlessly connects the kitchen, dining, and living areas, creating an inviting space for everyday living and entertaining. Enjoy premium features like a collapsible sliding door that opens to the backyard, high ceilings for an airy feel, and a spacious three-car garage for all your storage needs. With upgraded finishes throughout, this home combines elegance and functionality in every detail. Verify School District. Incentives are available only on select homes and may vary by community and homesite with preferred lender. Restrictions apply. Please contact our sales team for complete details.