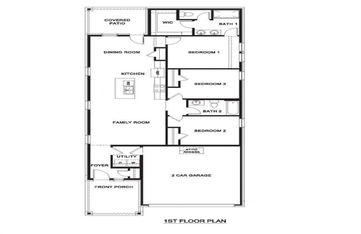
3544 Barnfield Avenue Aubrey, Texas 76227 Listing ID 21116152
3
2
1440
Property Description: New Construction by DR Horton in Silverado community. this cute 3 Bedrooms, 2 Bathrooms, 2 Car Garage with Covered Patio brick exterior spray foam attic insulation and smart home features included.