3
2
1595
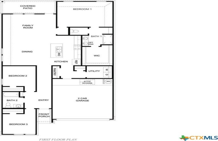
Property Description: Talk to us about the Caden, a floorplan at our Turnbo Ranch community in Killeen, Texas. With 3 bedrooms, 2 bathrooms, and approximate 1,595 sq. ft., this single-story home is designed to fit your needs. The 2-car garage gives you space for storage or your vehicles. When you first walk into the home, the entryway leads to two secondary bedrooms and the secondary bathroom. Continuing down the hall is the open concept living space starting with the kitchen and dining room. Modern design and function are key features, and the kitchen provides flat panel birch cabinets and granite countertops. The kitchen island includes a built-in sink, and stainless-steel appliances are throughout. Find the large pantry and laundry room next to the kitchen, with inside access to the garage. From the kitchen and dining area, you can continue to the large living space with easy access to the covered patio. The primary bedroom has an attached bathroom, with a spacious walk-in closet. Find yourself at home in the Caden floorplan!