4
3
2863
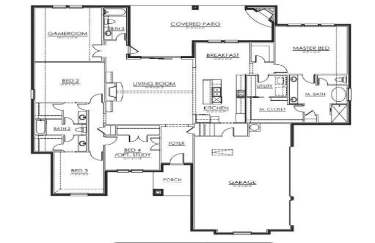
Property Description: MLS# 21117182 - Built by Brookson Builders - Ready Now! ~ This stunning home features a modern farmhouse aesthetic with a custom 8’ 3-lite front door with rain glass, black window package, metal awnings, and painted brick exterior. The interior boasts vaulted ceilings with a wood-wrapped beam, a full painted brick fireplace, and built-in cabinetry with wood-wrapped shelving in the living room. The kitchen is a chef’s dream with quartz countertops, floor-to-ceiling cabinets, custom matte black faucet, decorative backsplash, gas cooktop, and a pull-out trashcan. Bathrooms feature square sinks and a custom-tiled master shower with a half-glass wall unit. Additional highlights include custom lighting, wood-look tile throughout high-traffic areas, crown molding in kitchen and dining, and thoughtful touches like a pocket door between the master closet and utility room, plus extra recessed lighting in the master bedroom and game room.