4
3
2680
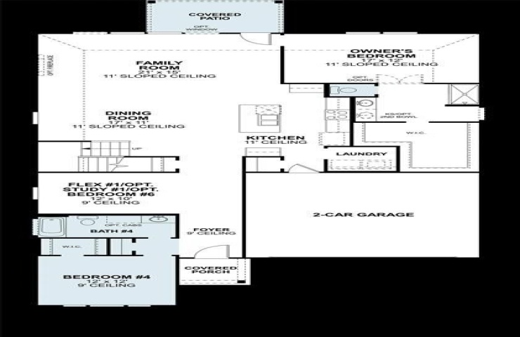
Property Description: Built by M-I Homes. Discover this thoughtfully designed new construction home at 1744 Foliage Drive in Fort Worth, Texas. Situated on a spacious corner homesite and within a fantastic new home community, this 2-story Livingston will impress with its beautiful design package, flexible layout, and tall ceilings. Key Features: • 4 bedrooms with owner's bedroom on the main floor • 3 full bathrooms with quality finishes • Open-concept living space ideal for entertaining and daily life • New construction with contemporary craftsmanship throughout Neighborhood & Location Benefits: • Proximity to local parks and outdoor recreation • Family-friendly, welcoming community atmosphere • Convenient access to schools, shopping, and everyday amenities The open-concept layout connects the kitchen, dining, and living areas for seamless flow throughout the main level. Wood-look tile flooring in a stylish warm brown shade guide you through the main living spaces. The owner's bedroom on the main floor provides privacy and easy accessibility, while the additional bedrooms upstairs offer flexible space for family, guests, or a home office. The bathrooms feature a marble-inspired wall tile and modern fixtures. Careful attention to detail and quality construction are evident throughout this home. Situated in a desirable Fort Worth neighborhood, it combines thoughtful design with practical living. Schedule your visit today.