4
2
1545
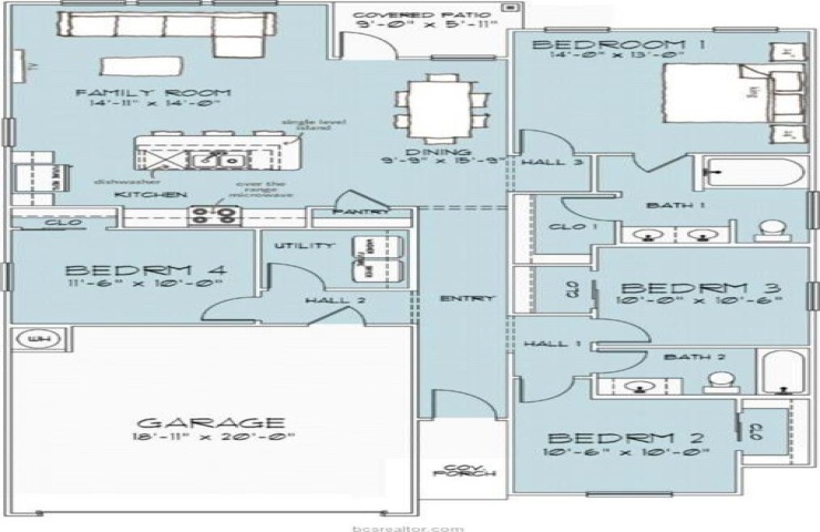
Property Description: Popular 4 bedroom/2 bath house seems larger than 1545 sq. ft. with an open concept living, kitchen and dining! You will love the spa-like master bath, vinyl plank throughout the main areas, and the covered back patio. The house features tons of upgrades including granite countertops, stainless steel appliances, recessed lighting, full blinds, and more. The finished pictures are of a similar model.