3
2
1699
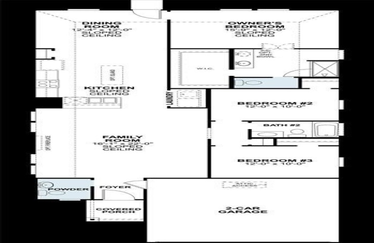
Property Description: Built by M-I Homes. Discover this exceptional new construction home at 2516 Russell Way in Mesquite, built by M-I Homes. This thoughtfully designed single-story home offers an ideal blend of comfort and functionality for today's lifestyle. Home Features: - 3 bedrooms - 2 full bathrooms - Spacious kitchen with island - Open-concept living space perfect for entertaining and daily life - New construction with quality craftsmanship throughout - Carefully planned floorplan maximizing space and flow The home's open-concept design creates seamless transitions between living areas, making it perfect for both relaxation and hosting guests. The family room connects to the kitchen, where you'll enjoy beautiful finishes, sloped ceilings, upper and lower cabinetry, and an island for even more meal prep space. Gather around the dinner table for a home-cooked meal in the adjacent breakfast nook! Unwind at the end of the day in the private owner's suite situated at the back of the home. The warm glow of sunlight enters through 2 large windows. Enter the double-doors of your en-suite owner's bathroom to find a beautiful double sink vanity, an oversized walk-in shower, a private water closet, and an enormous walk-in closet! This new construction home in Mesquite offers buyers the opportunity to be the first to call this well-designed space home. Experience the quality and craftsmanship that M-I Homes brings to this exceptional new home. Schedule a visit today!