4
3
2368
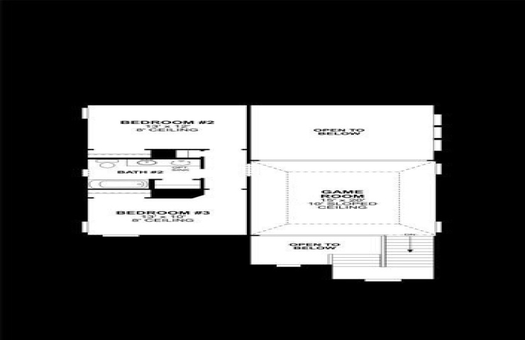
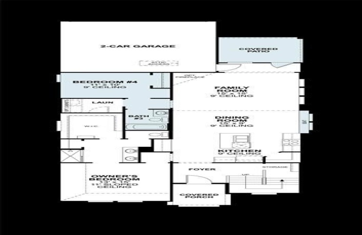
Property Description: Built by M-I Homes. Discover this thoughtfully designed new construction home at 2624 Lewisville Road in Celina, Texas. Key Features: • 4 bedrooms with flexible layouts for family, guests, or home office • 3 full bathrooms with quality fixtures and finishes • Open-concept living space connecting kitchen, dining, and family areas • New construction with contemporary finishes and builder warranty Neighborhood & Location Benefits: • Close proximity to parks and outdoor recreation • Welcoming, family-friendly community atmosphere • Convenient access to schools, shopping, and local amenities The open-concept layout ensures smooth flow between the main living areas, creating an inviting environment for both relaxation and gatherings. Each bedroom offers comfortable accommodations, while the thoughtfully planned bathrooms provide convenience for family and guests. With modern design, quality craftsmanship, and a prime Celina location, this new construction home provides the perfect combination of style, function, and comfort. Schedule your private tour today. About the Community: Discover the perfect blend of luxury living and community charm within Lilybrooke at Legacy Hills, a new master-planned development in Celina, Texas. This expansive 3,200-acre community offers an unparalleled lifestyle and is conveniently located near major highways. Schedule a visit today!