4
3
2880
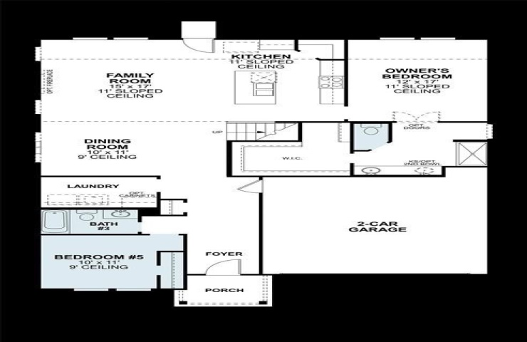
Property Description: Built by M-I Homes. Discover this stunning Quick Move-In home at 743 Embrace Court in Lavon, TX. Thoughtfully designed with an open-concept living space, this home offers the perfect blend of modern design, comfort, and functionality—ideal for both everyday living and entertaining. Home features include: - 5 spacious bedrooms, with the owner’s suite conveniently located on the main level - 3 beautifully designed bathrooms with modern finishes - Open-concept living areas that create a seamless flow throughout the home - Brand-new construction offering the latest in energy efficiency and home design The owner’s suite on the main floor provides privacy and easy access, while the additional bedrooms offer flexibility for guests, a home office, or growing families. The open-concept layout connects the kitchen, dining, and living spaces—filling the home with natural light and creating an inviting atmosphere. Located in a welcoming Lavon community, you’ll enjoy nearby parks, outdoor recreation, and convenient access to local amenities—all within a peaceful suburban setting. Experience the joy of being the first owner of this brand-new home. Schedule a visit today!