4
3
1875
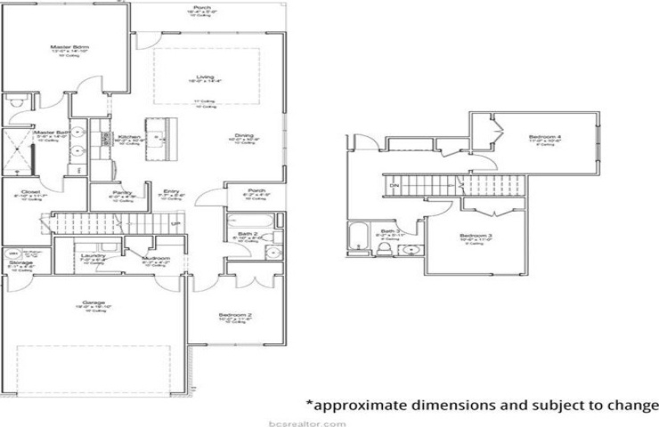
Property Description: Ranger Home Builders presents this thoughtfully designed 4-bed, 3-bath end-unit townhome, offering the perfect blend of space, style, and flexibility! The first-floor primary suite features a large walk-in shower and ample storage. Blinds are included on all windows and fans in all bedrooms for added comfort and privacy. The kitchen includes granite countertops, soft-close white cabinetry, upgraded GE electric appliances, and a top-control dishwasher. LVP flooring enhances all main living areas, while carpet adds comfort to each bedroom. Smart home features include a Ring doorbell, smart lighting switches, and a smart keypad deadbolt. A walk-in laundry room, 2-car garage, covered patio, LED lighting throughout, and included yard maintenance ensure convenient ownership. Located directly across from College Station High School and just minutes from Jones Crossing, this residence delivers outstanding convenience and modern living in a highly desirable area. With completion expected in February 2026, this home is positioned within a limited-availability community that permits short-term rentals, setting it apart as an exceptional investment, game-day retreat or primary residence! Schedule a private tour today!