3
2
1715
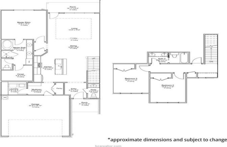
Property Description: This new construction 3-bed, 2.5-bath interior townhome combines upscale design with exceptional functionality—scheduled for completion in February 2026! The first-floor primary suite features a spacious layout with 10' ceilings and a walk-in closet. Main common area showcases durable LVP flooring and functional LED lighting throughout. Blinds are included on all windows and fans in every bedroom for added comfort and privacy. The kitchen includes granite countertops, soft-close white cabinetry, and upgraded GE electric appliances with a vented microwave. A walk-in laundry room ensures added convenience. Additional highlights include carpeted bedrooms, a covered patio, a 2-car garage, smart light switches, Ring doorbell, and a smart keypad deadbolt. Yard maintenance is INCLUDED, making this home effortless to own and enjoy. Located directly across from College Station High School and only 3.5 miles from Jones Crossing, the Barron Oaks development offers premium access to desirable amenities while maintaining a private, upscale residential feel. One of the few new construction options in College Station that allows short-term rentals, this property is ideal for investors, game-day visitors, or those seeking an elevated lock-and-leave residence OR primary residence in the heart of College Station! Schedule your private showing today!