4
2
1756
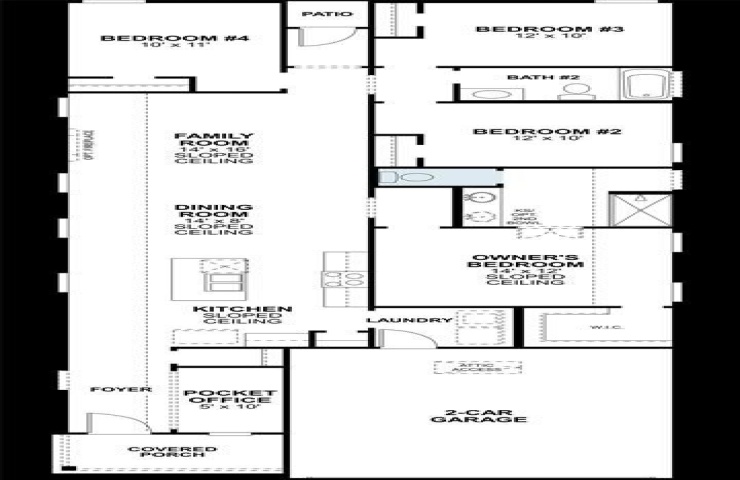
Property Description: Built by M-I Homes. Discover this stunning new construction home at 14112 Zealand Drive in Pilot Point, Texas. Built by M-I Homes, this thoughtfully designed 4-bedroom, 2-bathroom home offers an open-concept layout and stunning design finishes throughout. The well-designed floorplan features: Open-concept living space with sloped ceilings Quartz kitchen countertops Owner's en-suite bathroom with a dual-sink vanity This home is situated in a desirable neighborhood known for its family-friendly atmosphere. The location provides convenient access to local parks, making it ideal for outdoor recreation and activities. The area offers a peaceful setting while maintaining proximity to essential amenities and services. As a new construction home, you'll enjoy the benefits of modern building standards and energy efficiency. The quality craftsmanship from M-I Homes ensures attention to detail throughout the home's design and construction. The single-story layout provides convenient accessibility and practical living. The open-concept design creates a seamless flow between living spaces, enhancing both functionality and comfort. This home represents an excellent opportunity to own a quality new construction home in Pilot Point's growing community. The combination of thoughtful design, desirable location, and new construction benefits makes this an attractive option for homebuyers seeking comfort and convenience. Schedule your visit today to learn more about 14112 Zealand Drive!