3
2
1699
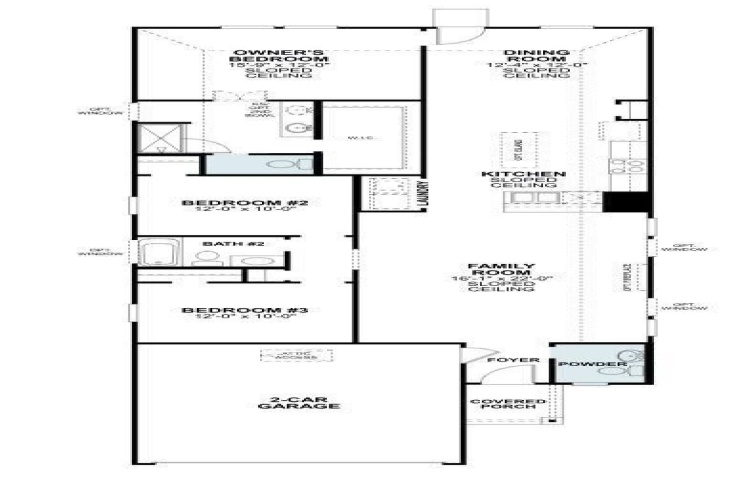
Property Description: Built by M-I Homes. 7016 Butterfield Drive, Sanger, TX offers a thoughtfully designed single-story home in a welcoming neighborhood. Key Features: • 3 bedrooms with owner’s bedroom in its own private corner • 2 full bathrooms and 1 half bathroom • Front-load garage • Open-concept layout connecting kitchen, dining, and living areas This single-story home features an open-concept design that encourages natural flow between the main living areas, creating a bright and inviting environment ideal for both daily living and entertaining. Luxury vinyl plank flooring effortlessly guides you through the main living spaces. Thoughtful layouts maximize functionality and comfort throughout. The owner’s bedroom in its own private corner provides a peaceful retreat, while the additional bedrooms offer flexible options for family, guests, or a home office. Quality finishes and attention to detail enhance the livability and appeal of every room. The kitchen is a standout space with ample storage space, granite countertops, and stainless steel appliances. Neighborhood & Location Benefits: • Close to local parks and outdoor recreation areas • Family-friendly neighborhood with well-planned streets, walking trails, and a playground • Convenient access to nearby schools and essential amenities • Easy connections to major roads for commuting Schedule your visit today!