4
3
2106
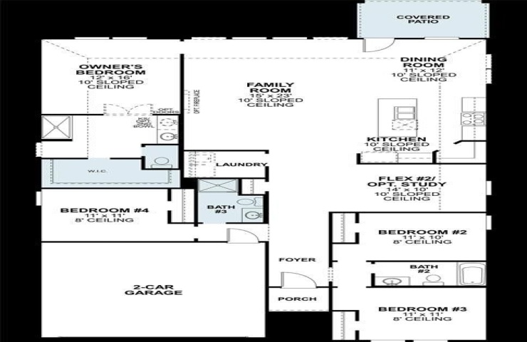
Property Description: Built by M-I Homes. New 4-Bedroom Home for Sale in Fort Worth, Texas Discover this thoughtfully designed new construction home at 1704 Opaca Drive in Fort Worth, Texas. Key Features: • 4 bedrooms with owner's suite in its own private corner • 3 full bathrooms with quality fixtures and finishes • Open-concept living space connecting kitchen, dining, and family room • New construction with modern design and craftsmanship Neighborhood & Location Benefits: • Convenient access to nearby parks and outdoor activities • Family-friendly community atmosphere • Close to schools, shopping, and local amenities The open-concept layout ensures smooth flow between main areas, creating an inviting space for family gatherings or quiet relaxation. Upgraded wood-look tile flooring guides you through the main living spaces. The owner's suite provides a private retreat, while additional bedrooms offer flexible options for guests, home offices, or hobby space. Each bathroom is accentuated by a marble-inspired wall tile. The kitchen is a true highlight with quartz countertops, stainless steel appliances, and an abundance of cabinetry. With thoughtful design, quality finishes, and a prime Fort Worth location, this new construction home combines comfort, style, and practicality. Schedule your visit today!