4
2
1898
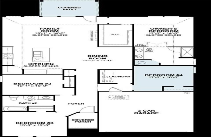
Property Description: Built by M-I Homes. Discover this beautifully designed new construction home located at 1600 Etosha Drive in Royse City. This home offers the perfect blend of style, comfort, and functionality for modern living. This home features 4 spacious bedrooms, 2 bathrooms designed for everyday comfort and functionality, an open-concept living area that creates a seamless flow for entertaining and daily life, contemporary finishes, and much more! The floorplan is designed to maximize every square foot, connecting the kitchen, dining, and living spaces for easy gatherings and comfortable everyday living. Situated in a desirable Royse City neighborhood, this home offers easy access to local parks, green spaces, and recreational opportunities. The area is known for its thoughtful planning and welcoming community atmosphere. Experience the joy of being the first owner of this stunning home. Built with modern standards and energy-efficient features, it delivers quality, value, and long-lasting comfort. Schedule your visit today!