4
2
2010
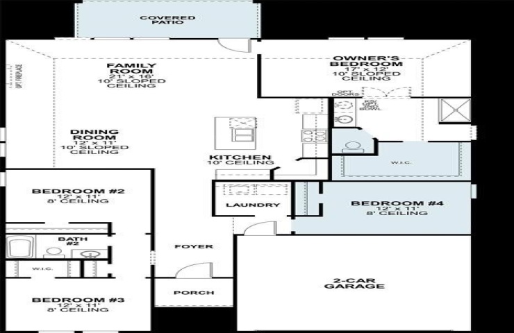
Property Description: Built by M-I Homes. Discover this beautiful new construction home at 1604 Etosha Drive in Royse City. This thoughtfully designed single-story home perfectly blends modern comfort and functionality for today’s lifestyle. Highlights of this stunning home include 4 spacious bedrooms, 2 full bathrooms designed for everyday comfort and functionality, an open-concept floorplan that creates a seamless flow between living areas, contemporary finishes, and so much more! The floorplan is designed to make the most of every square foot, connecting the kitchen, dining, and living spaces to create the perfect setting for both entertaining and relaxing. Wood-look tile flooring guides you through the main spaces offering a luxurious and easy to clean design detail. The kitchen is a highlight of the space delivering the best of function and form. Delight in the beauty and practicality of quartz countertops, stainless steel appliances, a beautiful tiled backsplash, a large center island, plus an abundance of cabinetry for all of your storage needs. Located in a desirable Royse City neighborhood, this home offers easy access to local parks, recreational areas, and everyday conveniences. Enjoy a peaceful community setting while staying close to everything you need. Experience the joy of being the first owner of this stunning home. Built with modern standards and energy-efficient features, it’s ready to welcome you with lasting quality and comfort. Schedule your visit today!