3
2
1510
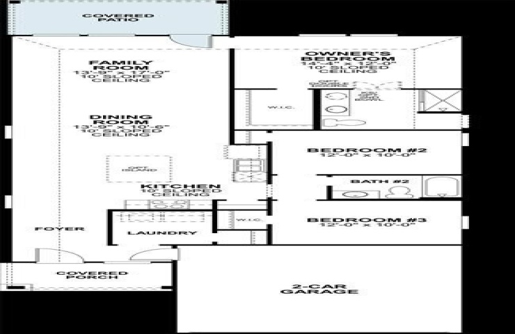
Property Description: Built by M-I Homes. Discover this thoughtfully designed new construction home at 7014 Butterfield Drive in Sanger, Texas. Key features include 3 bedrooms with an owner's suite in its own private corner, 2 full bathrooms with quality fixtures and finishes, an open-concept living space that's perfect for daily life and entertaining, new construction with contemporary craftsmanship, and more! The home's open layout ensures seamless flow between the kitchen, dining, and living areas, creating an inviting space for family activities and gatherings. The owner's suite offers privacy and easy accessibility, while the additional bedrooms provide flexible options for family, guests, or a home office. Built with attention to detail, this home maximizes every square foot for comfort and practicality. Situated in a desirable Sanger neighborhood, it combines thoughtful design with a convenient location for everyday living. Schedule a visit today!