4
3
2106
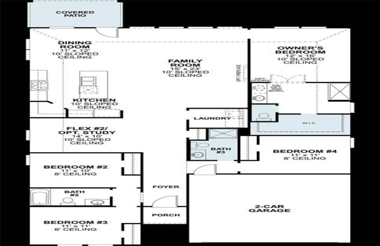
Property Description: Built by M-I Homes. This new construction home at 7717 Moosewood Drive offers thoughtfully designed living space throughout. This single-story home features an open-concept design that creates seamless flow throughout the main areas. Key features include 4 bedrooms, 3 bathrooms, a covered patio, an open-concept floorplan design, a 2-car garage, and more! Entering the spacious foyer, you will find two private bedrooms and a full bathroom tucked off the entry. A third bedroom and third full bathroom can be conveniently found further down the foyer. On the other side of the foyer is a spacious and bright flex room, an ideal space for everything from a quiet reading lounge to a perfect playroom. Continue into the open kitchen, dining area, and family room. Enjoy impressive included features throughout the kitchen such as granite countertops, a large kitchen island, and spacious upper and lower cabinets. The covered patio offers the perfect spot for outdoor entertaining! The bright owner’s suite is tucked at the back of the home, privately off of the family room. The owner’s bedroom features two large windows for plenty of natural light. Enter your owner’s bath retreat through the upgraded double doors to find a large walk-in shower, optional double vanities, and a spacious walk in closet. The neighborhood setting provides a peaceful residential environment, with quality design elements throughout the home. The proximity to local parks enhances the appeal for families seeking outdoor recreation opportunities nearby. This Fort Worth home combines practical living spaces with the benefits of new construction, offering buyers the opportunity to be the first occupants of a well-designed single-story home. The thoughtful floorplan and quality construction make this an attractive option for those seeking a move-in ready home in the Fort Worth area. Schedule your visit today!