3
2
1156
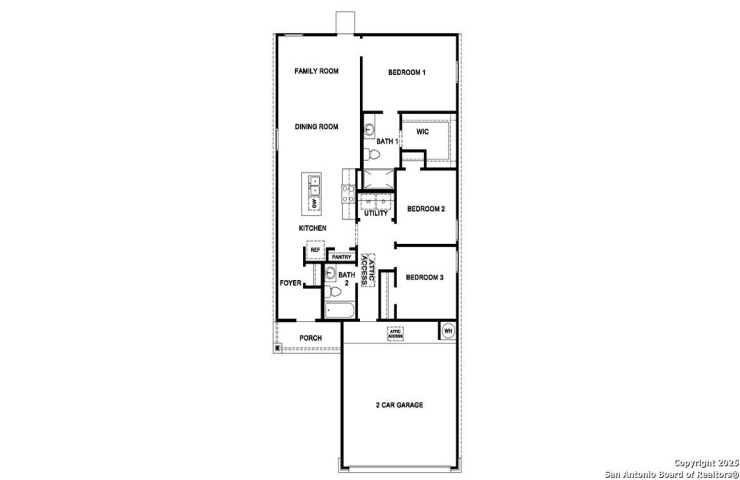
Property Description: The Atlanta is a charming one-story home featured at Avenida in Converse, TX. Featuring 2 classic front exteriors, this 3 bedroom, 2 bathroom home also offers 1156 square feet of living space and a 2-car garage. A front porch (per plan) welcomes you into the home and opens to the gourmet kitchen which includes quartz counter tops, quality cabinets, stainless steel appliances and an open concept floorplan with the kitchen flowing seamlessly into the dining room and living room. The main bedroom has an attractive ensuite bathroom that features a quartz vanity countertop and quality cabinetry. Enjoy additional storage with a spacious walk-in closet located off of the primary bathroom. Your secondary bedrooms all feature quality carpet flooring and a closet, and can be used as bedrooms, offices, work out spaces or other bonus rooms. The possibilities are endless with The Atlanta floor plan. Additional features include sheet vinyl flooring in entry, living room, and all wet areas, quartz counter tops in all bathrooms and HOME IS CONNECTED base package. Using one central hub that talks to all the devices in your home, you can control the lights, thermostat and locks, all from your cellular device.