4
3
2849
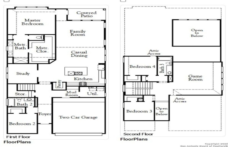
Property Description: The Devers floorplan masterfully combines functionality, charm, and modern design in a well-thought-out two-story layout. Featuring four spacious bedrooms, a dedicated study, and three beautifully appointed bathrooms, this home is perfectly suited for growing families or welcoming guests with ease. Step inside to find an open-concept main floor, where the living area seamlessly flows into the kitchen and dining spaces-creating an ideal setting for both lively gatherings and comfortable daily living. The kitchen's stylish finishes and intuitive layout make it the heart of the home, perfect for both aspiring chefs and casual cooks alike. Upstairs, bedrooms are thoughtfully positioned for maximum privacy, offering personal retreats for every member of the household. Each space is designed with comfort and convenience in mind. From its practical layout to its elegant finishes, the Devers floorplan captures the essence of modern, comfortable living. Whether you're seeking a peaceful sanctuary or a space to entertain, this home adapts beautifully to your lifestyle. Don't miss your opportunity to make this exceptional home yours-schedule your visit today!