4
2
2336
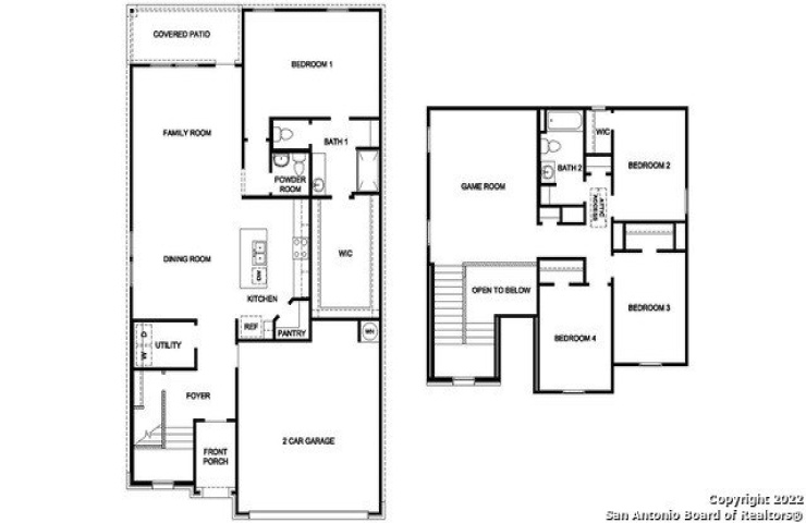
Property Description: The Pierce floor plan, located at Brookstone Creek in San Antonio, TX, offers the perfect blend of functional living and thoughtful design across two spacious levels. With 4 bedrooms, 2.5 bathrooms and an open-concept layout, this home is built to meet the needs of today's busy households. The heart of the home is the blended kitchen and main living area, where stainless steel appliances, a gas cooking range, quartz countertops and classic white subway tile backsplash all come together around a spacious kitchen island - perfect for entertaining or everyday meals. The primary bedroom suite is conveniently located on the main level of the home, providing a private escape with a walk-in shower, dual vanity sinks, a separate water closet and a generous walk-in closet. As you ascend the grand staircase, you're greeted by an open-to-below game room, creating an airy, connected feel that enhances the home's spacious design. This versatile space is perfect for a secondary living area, media room, or playroom. Additionally, all your secondary bedrooms are located upstairs and center around a full bathroom, offering comfortable accommodations for family or guests. This home includes our HOME IS CONNECTED base package. Using one central hub that talks to all the devices in your home, you can control the lights, thermostat and locks, all from your cellular device. Additional features include vinyl plank flooring throughout the main living and wet areas, a covered patio (per plan), full yard landscaping with irrigation, and a pre-plumbed water softener loop for added convenience. The Pierce is a dynamic two-story home offering style, comfort and flexibility, all located in welcoming Brookstone Creek.