2
3
2026
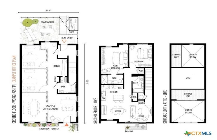
Property Description: Reach out to walk through a furnished unit with us today! Finished interior photos coming soon. Lively Lane is a pocket neighborhood of contemporary townhomes located in the heart of San Marcos. Its convenient location makes it possible to own a new home in town and not miles away from the city center. High quality standard specifications and professionally managed condominium association support lock-and-leave convenience for a modern lifestyle. New homes completed in 2025 at Lively Lane are Energy Star(R), EPA Indoor AirPlus, and Department of Energy Zero Energy Home Ready (ZERH) rated. The neighborhood is near a multitude of walkable services and even more essential destinations by bike. That means that sustainability comes standard, and - for those that want to do more - add-ons are available including solar packages, solar carport, and electric vehicle chargers. Other standard features include interior finishes like hardwood flooring, quartz kitchen and bath countertops, vaulted top floor ceilings, Daikin Smart Thermostats, GE and GE Profile appliances with induction range included, heat-pump air conditioning and water heaters, Pella casement windows, advanced framing techniques, native landscaping, a permeable paver system, and so much more. Lively Lane has also partnered with a neighborhood exclusive carshare service, available to residents and guests. The Innovative Live-Work is for those that embody entrepreneurship. A neighborhood storefront along the streetscape provides a customizable ground floor commercial space ready to serve as a professional office, workshop, studio, shop, or gallery. Above, the home features an open living plan complete with two beds, two baths, and two bonus storage lofts with a private, fenced rear garden, a storage/bike shed, and a welcoming planter at the shop front. Whether you're a small-business owner, entrepreneur, WFH-pro, or ADU-lover, the Innovative Live-Work fits many circumstances and can adapt to your needs over time.