5
4
3164
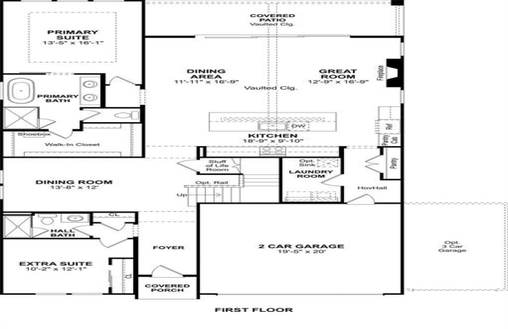
Property Description: New Home in master-planned community located in Forney, TX. The Santa Fe home is impressive, stately and grand. Complete with 5 bedrooms, 4 baths. An intimate dining room is set right off the welcoming foyer. A sizeable kitchen features a pantry and island overlooking the spacious great room and dining area with access to the covered patio. A primary suite includes a generous walk-in closet, private bath with dual sinks and freestanding tub. A versatile loft, 2 full baths, storage and linen closet reside on the 2nd floor along with 3 spacious bedrooms. Residents will enjoy future on-site including an indoor multi-purpose community room, lighted event lawn, and resort-style pools. Schedule a tour today