5
3
2386
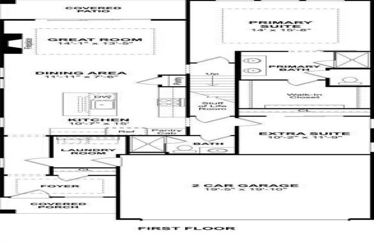
Property Description: This 2-story layout blends the best of a stylish design package and functional features. Stunning laminate flooring guides you from the foyer and into the open living space boasting the kitchen, dining area, and great room. Enjoy impressive features such a kitchen island, quartz countertops, glass globe pendant lighting, dazzling white shaker cabinets, and stainless steel appliances. Escape to your primary suite through a private entry off the great room. Just steps away, enjoy your spacious primary bath that has a large walk-in closet. The staircase draws you up to the second story which hosts a large loft, 3 secondary bedrooms and a full bath.