5
2
2539
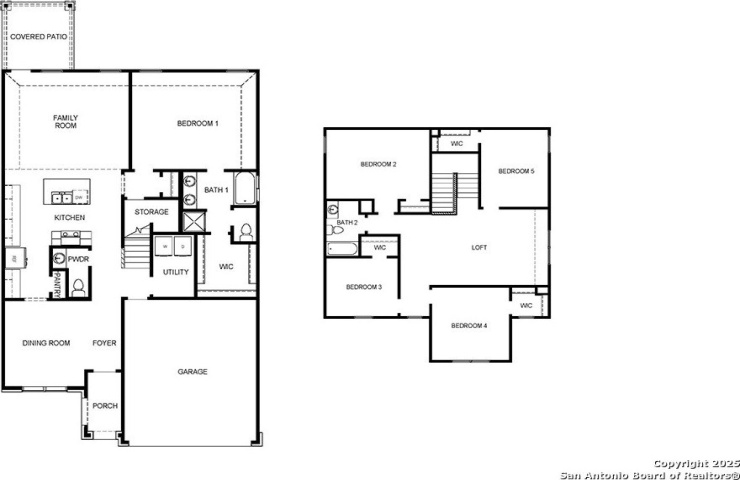
Property Description: Introducing The Lombardi, a two-story home featured in our Langdon community in San Antonio, TX. This floor plan offers 3 classic front exteriors, a 2-car garage, and a full yard landscaping and irrigation package ensuring that your home looks its best every single day. Inside this 5 bedroom, 2.5 bathroom home, you'll find 2539 square feet of open-concept living. A deep-set, covered porch (per plan) opens to a foyer, formal dining room, and powder room. A butler entry connects the dining room and spacious kitchen lined with abundant cabinetry and quartz-top counterspace. Classic white subway tile backsplash and stainless steel appliances are a perfect accent, and a kitchen island with a deep single basin kitchen sink faces the living room. The private main bedroom suite is located off the living room and features a luxurious garden bath tub, a separate walk-in shower with tile surround, double vanity sinks, ceramic tile flooring, a separate door for the toilet and a large walk-in closet. Head up the stairs and tour the second floor of your brand new home! A versatile loft area greets you at the top of the stairs, complete with quality carpet and tons of natural light. Your four secondary bedrooms are located off the loft and include carpet flooring and spacious walk-in closets. Additional features include 9-foot ceilings, 2-inch faux wood blinds throughout the home, luxury vinyl plank flooring in the entryway, living room, kitchen, and dining room, ceramic tile at all bathrooms and utility room, pre-plumb for water softener loop, and more! You'll enjoy added security in your new home with our Home is Connected features. Using one central hub that talks to all the devices in your home, you can control the lights, thermostat and locks, all from your cellular device.