3
2
1604
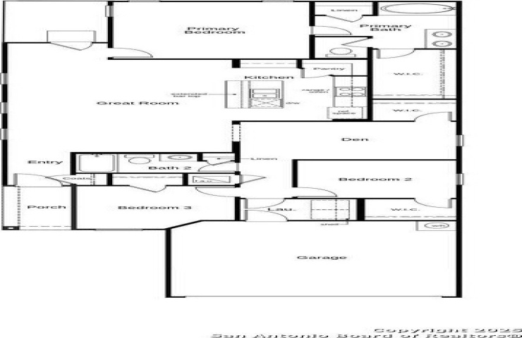
Property Description: Enjoy stylish living in this thoughtfully designed home featuring 9-ft. first-floor ceilings for an open, airy feel. The kitchen offers a modern touch with Whirlpool stainless steel appliances, Woodmont Cody 42-in. upper cabinets, granite countertops in Arctic Pearl, and an extended breakfast bar. Relax in the primary bath with a 42-in. garden tub/shower accented by a Daltile tile surround. Decorative details include a Carrara-style entry door, Kwikset Polo knob hardware, and Stone Theory ceramic tile flooring in the bathrooms, kitchen, and greatroom. Additional highlights include a wireless security system, a fully sodded yard, and an automatic sprinkler system.