3
2
1242
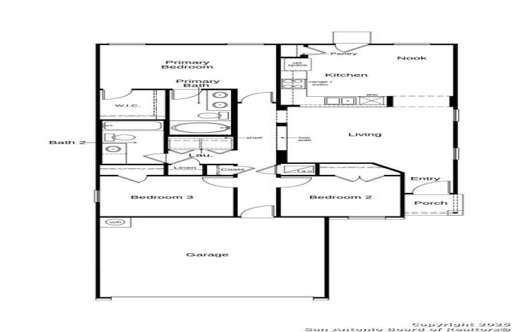
Property Description: Step into modern comfort with this beautifully designed home featuring an open floor plan perfect for everyday living and entertaining. The kitchen shines with Whirlpool stainless steel appliances, elegant Woodmont Cody 42-in. upper cabinets, Barcelona granite countertops, and a sleek Moen faucet. The primary bath offers relaxation with a 42-in. garden tub/shower accented by a Daltile tile surround. Decorative touches include a stylish Carrara-style entry door, Kwikset Polo knob hardware, and cozy Shaw carpet in the bedrooms, kitchen, bathrooms, and laundry room. Enjoy peace of mind with a built-in wireless security system and outdoor ease with a fully sodded yard.