4
2
1617
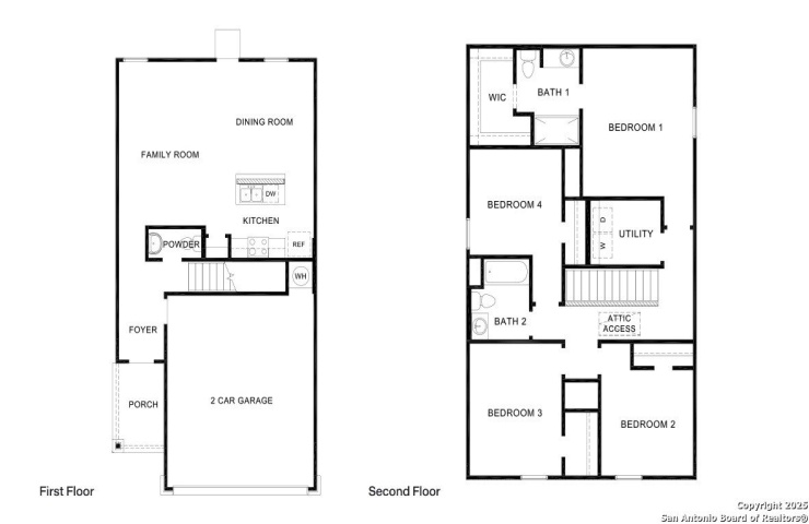
Property Description: Welcome to The Clyde, a two-story home located at Blue Ridge Ranch in San Antonio, TX. This floor plan offers 2 classic exteriors and 2-car garage. Inside this 4 bedroom, 2.5 bathroom home, you'll find 1617 square feet of living space. The entry opens to a spacious family room before flowing into the dining room and kitchen with an open floorplan concept. The kitchen includes quartz counter tops, quality cabinetry, stainless steel appliances, large breakfast island, and pantry. Head up the stairs to find the main bedroom suite, all secondary bedrooms, the laundry room, and a full bath. The Clyde layout is perfect if you love entertaining downstairs and relaxing upstairs. The private main bedroom features an attractive ensuite with quality cabinetry. A spacious tiled walk-in shower and large walk-in closet provide all the space and convenience you need. Additional features of The Clyde floor plan include sheet vinyl flooring in entry, living room, and all wet areas, quartz counter tops in all bathrooms and HOME IS CONNECTED base package. Using one central hub that talks to all the devices in your home, you can control the lights, thermostat and locks, all from your cellular device.